How to build a Fender Champ 5F1 style

Discussion of Speakers, Cabinets and Cabinet Building

Moderators: pompeiisneaks, Colossal

Post Reply
Mojojtm
Posts: 73
Joined: Wed Dec 15, 2021 6:09 pm
Location: Hoofddorp, Netherlands
Contact:

How to build a Fender Champ 5F1 style

Post by Mojojtm »

Hi All

I am new to the forum and happy to be part of it.

I have been building so far loads of Bluesbreaker style guitar cabinet trying to reproduce as much as I could to the original.

I have successfully succeeded on this by building single or 2x style cabinet or combo hosting 18 watts amp.

Now I want to build the little monster, the fender champ 5F1 I got the wood, the accessories the handle, and everything is needed including grillcloth and tweed.

Questions

I am looking for a project steps construction I could look at, I have some doubts on how the front panel baffle is made I want to make it as close as possible to the original.

Any videos or projects that can guide me are appreciated online to be honest I couldn’t really find what i was looking for.

I have already built a sample just the 4 lateral sides

If you need a photo I can attach it,

Thanks
Dave Mojo
www.mojojtm.com
Hand Crafted Guitar Cabs.
User avatar
Scumback Speakers
Posts: 759
Joined: Tue Nov 14, 2006 5:49 pm

Re: How to build a Fender Champ 5F1 style

Post by Scumback Speakers »

Looks like Mojotone has the schematic, wiring diagram layout, and manual for the 5F1 Champ online.

https://www.mojotone.com/amp-kit-resources
Scumback - Spring Break Sale!
Speakers are $10 off 3/19-3/30/25
sales@scumbackspeakers.com
www.scumbackspeakers.com
https://www.facebook.com/scumbackspeakers/
https://www.instagram.com/scumback_speakers/
User avatar
xtian
Posts: 7263
Joined: Mon Apr 19, 2010 8:15 pm
Location: Chico, CA
Contact:

Re: How to build a Fender Champ 5F1 style

Post by xtian »

Rob has lots of great info: https://robrobinette.com/How_Amps_Work.htm
I build and repair tube amps. http://amps.monkeymatic.com
Mojojtm
Posts: 73
Joined: Wed Dec 15, 2021 6:09 pm
Location: Hoofddorp, Netherlands
Contact:

Re: How to build a Fender Champ 5F1 style

Post by Mojojtm »

I didn’t ask how an amp works I am building amps since long time.

I asked how to build a Fender Champ guitar cabinet

Thanks anyway
Dave Mojo
www.mojojtm.com
Hand Crafted Guitar Cabs.
User avatar
martin manning
Posts: 14308
Joined: Sun Jul 06, 2008 12:43 am
Location: 39°06' N 84°30' W

Re: How to build a Fender Champ 5F1 style CABINET

Post by martin manning »

Mojojtm wrote: Tue Dec 21, 2021 8:52 pmI asked how to build a Fender Champ guitar cabinet
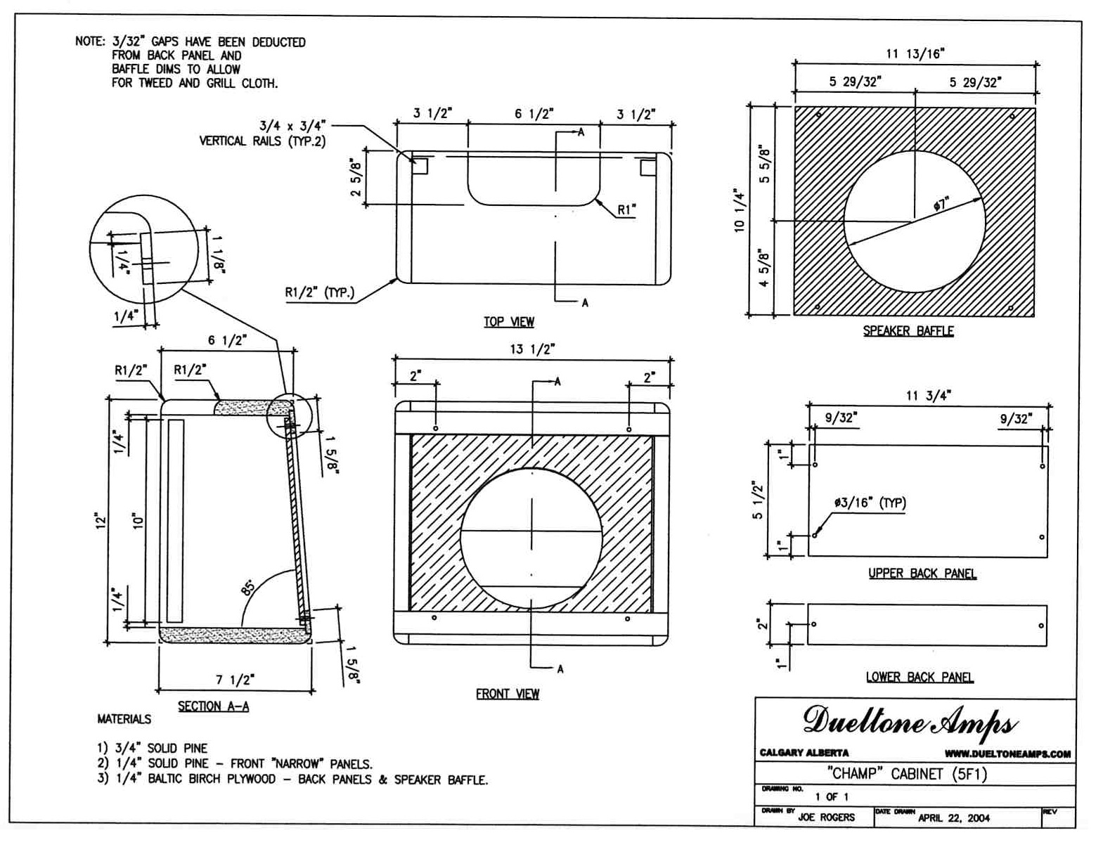
Fender Champ cabinet plans from the web:
Attachments
Champ cab (5F1) DuelTone.pdf
(137.01 KiB) Downloaded 1313 times
Mojojtm
Posts: 73
Joined: Wed Dec 15, 2021 6:09 pm
Location: Hoofddorp, Netherlands
Contact:

Re: How to build a Fender Champ 5F1 style

Post by Mojojtm »

Thanks a lot that helps
Dave Mojo
www.mojojtm.com
Hand Crafted Guitar Cabs.
Mikante
Posts: 214
Joined: Fri Oct 29, 2021 7:07 pm
Location: Italy

Re: How to build a Fender Champ 5F1 style

Post by Mikante »

Hello, i m building the same cabinet, just larger enough to host a 10 inch speaker.
I wouldn’t care about the finger joint, a simple dado/rebate on each side, some vinylic glue and clamps.
You ll get the same result and there is no benefit in terms of vibration going for the finger joint which is in my opinion purely aesthetic and probably a better choice only if you decide not to use the classic tweed tolex to cover the cabinet.
But this is just my advice on the construction method that you might want to take into account.
The plans that Martin provided you are what you were looking for.
I would add a couple of screews in the middle to have a better connection between the cabinet and the baffle.
I d like to see your work in the process of making it.
User avatar
alkuz1961
Posts: 179
Joined: Sat Mar 03, 2012 3:32 am
Contact:

Re: How to build a Fender Champ 5F1 style

Post by alkuz1961 »

I remembered that a long time ago I also collected Champ, and I still have photos of the build, step by step. I think it might be useful to someone...
5f1_Cabinet.jpg
1.jpg
2.jpg
2a.jpg
3.jpg
4.jpg
4a.jpg
5.jpg
6.jpg
7.jpg
User avatar
alkuz1961
Posts: 179
Joined: Sat Mar 03, 2012 3:32 am
Contact:

Re: How to build a Fender Champ 5F1 style

Post by alkuz1961 »

continuation
8.jpg
9.jpg
10.jpg
14.jpg
15.jpg
16.jpg
17.jpg
18.jpg
19.jpg
20.jpg
User avatar
alkuz1961
Posts: 179
Joined: Sat Mar 03, 2012 3:32 am
Contact:

Re: How to build a Fender Champ 5F1 style

Post by alkuz1961 »

and a little more
21.jpg
22.jpg
23.jpg
24.jpg
25.jpg
26.jpg
26a.jpg
27.jpg
28.jpg
29.jpg
User avatar
alkuz1961
Posts: 179
Joined: Sat Mar 03, 2012 3:32 am
Contact:

Re: How to build a Fender Champ 5F1 style

Post by alkuz1961 »

It's almost over )))
30.jpg
31.jpg
35.jpg
36.jpg
Fender_Champ_5f1_4.jpg
Fender_Champ_5f1_5.jpg
Fender_Champ_5f1_6.jpg
Fender_Champ_5f1_7.jpg
Fender_Champ_5f1_9.jpg
Fender_Champ_5f1_10.jpg
sluckey
Posts: 3528
Joined: Sun Jul 22, 2007 7:48 pm
Location: Mobile, AL
Contact:

Re: How to build a Fender Champ 5F1 style

Post by sluckey »

I'm surprised to see 27K on the input jacks. The original 5F1 uses 1M.
User avatar
alkuz1961
Posts: 179
Joined: Sat Mar 03, 2012 3:32 am
Contact:

Re: How to build a Fender Champ 5F1 style

Post by alkuz1961 »

sluckey wrote: Thu Jun 16, 2022 5:12 pm I'm surprised to see 27K on the input jacks. The original 5F1 uses 1M.
Oh, I'm surprised myself! But it was a long time ago and I don't remember all the nuances of this build anymore. I think this is some kind of temporary glitch that has been fixed)))
Post Reply